產品概述:
GN19-12系列戶內高壓隔離開關(以下簡稱隔離開關)為額定電壓12kV,三相交流50赫茲的戶內裝置。
產品使用環(huán)境條件:
a.安裝場所應無嚴重影響隔離開關絕緣和導電能力的氣體、蒸汽、化學性沉積、鹽霧、灰塵、污垢及其他爆炸性、侵蝕性物質。
b.安裝場所應無頻繁的劇烈振動。
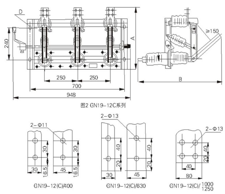
產品外形及安裝尺寸:
GN19-12 系列外形圖
GN19-12C 外形圖
產品外形尺寸表
產品型號 | A | B | C | D |
GN19-12/400 | 450 | 446 | 185 | 4-14×24 |
GN19-12/630 | 470 | 446 | 185 | |
GN19-12/1000/1250 | 510 | 500 | 196 | 4-18×28 |
GN19-12C/400 | 420 | 690 | 185 | 4-14×24 |
GN19-12C/630 | 430 | 690 | 185 | |
GN19-12C/1000/1250 | 470 | 745 | 196 | 4-18×28 |





